Naziv projekta: Kuća u Sveštici
Lokacija: Sveštica, Ivanjica
Godina projektovanja: 2021.
Godina izgradnje: 2022.
Površina: 166 m2
Projektant: MADA Architecture studio
Autori: Nikola Andonov, Aleksandar Ristović, Stefan Stojanović
Vizualizacije: MADA Architecture studio
- Presek detalja – kuća u Ivanjici, MADA Architecture
- Presek – kuća u Ivanjici, MADA Architecture
U zabačenom predelu u zapadnoj Srbiji, u golijskim brdima leži spokojno domaćinstvo stare porodice koja već nekoliko decenija tu uzgaja maline i šljive. Nakon godina razmišljanja i planiranja, odlučili su da posvete deo tog imanja novoj avanturi – sada srednja generacija ima nameru da sagradi kuću za privremeni ili stalni boravak. Iako su vlasnici imali početne ideje o tome kako kuća treba da izgleda i šta treba da ponudi, zajedno smo prošli kroz nekoliko iteracija kako bismo otkrili potpuno nove programe i arhitektonske gestove za koje nisu ni znali da su im bili potrebni.
Naš glavni utisak, nakon prvog obilaska lokacije bio je da ne treba svu pažnju posvetiti samo pogledu, već i „malim“ atmosferama koje bi trebalo da postignemo. U početku smo bili pažljivi sa pominjanjem bilo čega drugog osim famoznog pogleda, ali smo vremenom uspeli da obezbedimo brojna prostorna iznenađenja sa svega nekoliko jednostavnih pokreta i poteza.
- Porodična kuća u Sveštici, Ivanjica – Autori projekta: MADA Architecture
- Formiran je impozantni trem
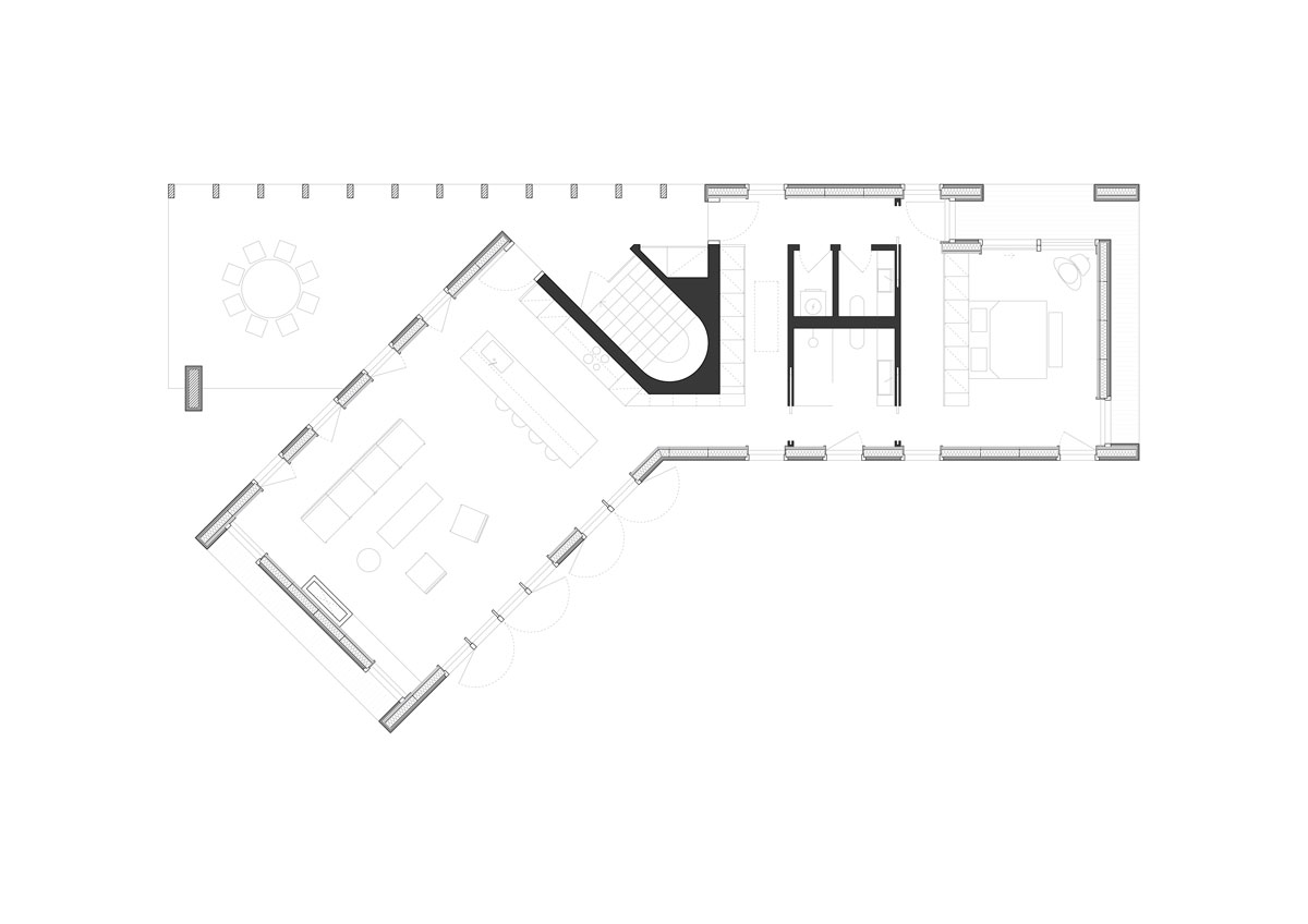
Osnovni raspored proizilazi iz veoma jasne distribucije zona i njihovog međusobnog preklapanja. Nakon proučavanja nekoliko najboljih primera obližnjih kuća, prepoznali smo značaj ulazne zone i njene veze sa ostatkom kuće: uobičajeno je grupisanje sadržaja u blok koji dalje komunicira sa kućom preko koridora. Naša interpretacija uključuje rasipanje komponenti tog bloka u susedne sadržaje i prostore. Drugi bitan gest bio je odvajanje svega od fasade – takva atmosfera dala je enterijeru, ali i eksterijeru kuće specifičan utisak otmenosti i prostornosti.
- Projekcija projekta
- Projekcija projekta
- Projekcija projekta
- Projekcija projekta
Savijanje takvog programa kao celine otvorilo je neke iznenađujuće sadržaje i odigralo je ključnu ulogu u životu ovog projekta. Sa jedne strane, dobili smo intenziviran dijalog dveju vitalnih zona kuće – dnevne i noćne. Sa druge strane, dobila se mogućnost da se ostvari prijatniji susret sa šumom sa zadnje strane kuće, kao i sa putićem koji goste dovodi u nju – sve to formiranjem impozantnog trema koji je proizašao iz osnovne prefabrikovane strukture kuće i njene orijentacije.
- Struktura kuće zamišljena je od prefabrikovanih panela oslonjenih na armirano-betonsku ploču
- Fasada je pravljena od drveta ariša tretiranom drevnom japanskom tehnikom paljenja drveta po nazivu Shou Sugi Ban
Specifična drvena fasada
Usled izrazito izazovnog terena i često ekstremnih klimatskih uslova, struktura kuće zamišljena je od prefabrikovanih panela oslonjenih na armirano-betonsku ploču. Iz istih razloga, prepoznatljivost kuće postiže se pravilnom opnom od talpi drveta ariša tretiranom drevnom japanskom tehnikom paljenja drveta po nazivu Shou Sugi Ban.
Stolarija
U pogledu stolarije, njena geometrija i odabir ramova proizašla je iz modularnosti i logike samih prefabrikovanih panela. Naglašene drvene vertikale zamišljene su kao dodatak ritmici i teksturi fasade i njenog odnosa sa konstrukcijom kolosalnog trema.
- Porodična kuća u Sveštici, Ivanjica – Autori projekta: MADA Architecture
- Porodična kuća u Sveštici, Ivanjica – Autori projekta: MADA Architecture
- Porodična kuća u Sveštici, Ivanjica – Autori projekta: MADA Architecture
Za kraj, kuća je planirana kao potpuno samostalna i održiva u smislu njene eksploatacije, budući da su na imanju planirani fotovoltaici, kao i geo-termalna pumpa i bunar sa pijaćom vodom.
Autori projekta:
MADA Architecture



















