SPECIJALNO ZA GRENEF
S Tamarom u akciji
Autor teksta: Aleksandar Popović, d.i.a.
Emisija „S Tamarom u akciji” je emisija o dobrim delima. O ljudima kojima je potrebno malo da bi postigli mnogo. O humanosti i prijateljstvu. O ljudskim vrednostima koje zaboravljamo. O solidarnosti, toleranciji. O očuvanju kulturnog nasleđa, tradiciji, folkloru. O ljubavi prema našoj zemlji, prirodi, nadahnjuću, o ljubavi prema sugrađanima
Humanitarna emisija “S Tamarom u akciji”, kao televizijski format, je vrlo kompleksna forma i za mene kao arhitektu je jako zahtevan projekat koji obuhvata ozbiljne pripreme.
Preko stotinu prijava prikupimo po sezoni od nadležnih službi i pojedinaca, razmatramo ih i na kraju na osnovu raznih parametara (veličina kuće, broj ukućana, socijalnog statusa kandidata, težine priče, mogućnosti da se kuća renovira za 5 dana, postojeće kvadrature…, itd.) odlučujemo, pa tek nakon toga odlazimo na kasting i na licu mesta radimo još jedan odabir.
Uglavnom je veoma teško da od stotine prijavljenih kuća i porodica vi odaberete polovinu koje ćete obići, i na kraju izabrati 12 do 16 njih kojima ćete renovirati kuću. Nimalo lak zadatak i još teža odluka za sve iz produkcije i televizije.
Susretali smo se sa raznim građevinskim izazovima i problemima, kao i raznim potrebama korisnika. Na primer, dešavalo se da imamo veći broj ukućana koji žive na premalo kvadrata, ili prevelika kvadratura objekta, a malo vremena (5 dana) za renoviranje. Bilo je tu i jako ugroženih porodica, ali i nerešenih vlasničkih odnosa…
A, što se tiče samog građevinskog dela i tu je bilo raznih situacija. Od problema sa vlagom, starih (urušavajućih) objekata, do loših materijala koji su se koristili za izgradnju kuće, nedostatka ili lošeg kvaliteta instalacija… Mnogo različitih problema je bilo. Ali, zapravo najviše sa lošom organizacijom prostora koji nije prilagođen ukućanima i starosnu dob korisnika, a vrlo često i prilagođenošću prostora za osobe sa invaliditetom.
Na renoviranju i adaptaciji kuće je lakše projektovati i raditi, jer sam skoro uvek mogao neku pomoćnu prostoriju – deo garaže, ostave ili šupe da “dodam” kvadraturi kao i tavanski prostor koji je kod višečlane porodice mogao da bude dodatni prostor za spavaće (uglavnom dečije) sobe. Kod kuća je uvek lakše “izmeštati” prostorije pa čak i same funkcije, a moguća je i minimalna dogradnja potrebnih kvadrata.
Međutim, kod stanova je to sasvim drugačija priča i znatno je teže. U stanovima je nemoguće dograditi, nadograditi, i samim tim i povećati kvadraturu. Vrlo često nemogućnost premeštanja instalacija uzrokuje da prostorije kao što su kuhinja ili kupatilo moraju da ostanu baš tug de su, što projektovanje čini mnogo restriktivno i uslovljeno. Jednostavno, projektuje se uvek u okviru gabarita, pozicije instalacije i nosećih zidova. Neretko dešava se da je stan totalno neprilagođen za osobe sa invaliditetom ili ljude sa otežanim hodanjem. Ali, moram priznati da sam kada završim i ispravim takve probleme vrlo zadovoljan .
Zato bih ovaj vam ovaj put predstavio projekte adaptacije dva stana koja smo uradili.
Stan 1
- Postojece stanje Stan 1
- Novoprojektovano stanje Stan 1
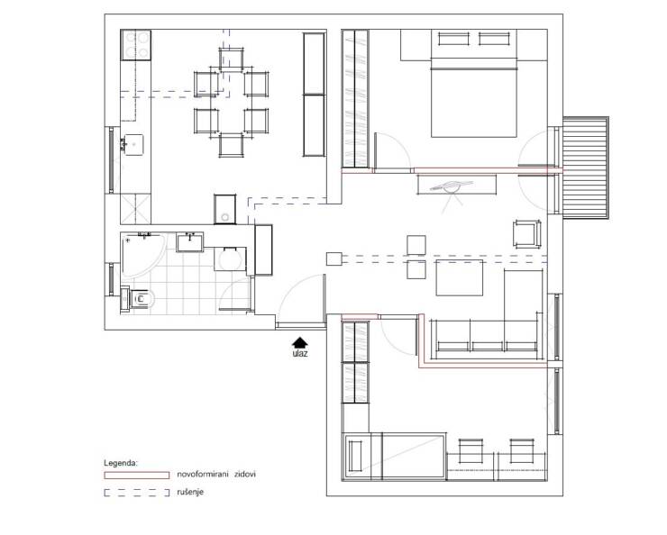
U stanu od 51 kvadratni metar živi šestočlana porodica, tri generacije – baba i deda, i bračni par sa dve ćerke. Projektni zadatak bio je da od stana koji ima dve identične sobe i kuhinju sa trpezarijom, napravimo dnevnu sobu, dve spavaće sobe, kuhinju i trpezariju.
- Zatečeno stanje Stan 1
- Zatečeno stanje Stan 1
Deca su, kao i baba i deda, dobili odvojene spavaće sobe, a rušenjem pregradog zida između hodnika i dnevne sobe dobili smo najveću moguću površinu dnevnog boravka, gde sam predvideo garnituru na razvlačenje (za mamu i tatu). Rušenjem ostave povećali smo kvadraturu kuhinje i trpezarije i napravili vrlo komforni centar okupljanja ove šestočlane porodice. Osim toga, uspeli smo da renoviramo i podrum i pretvorili ga u ostavu .
- Stanje nakon intervencije STan 1
- Stanje nakon intervencije Stan 1
- Stanje nakon intervencije Stan 1 / Dečija soba
- Stanje nakon intervencije Stan 1 / Dnevna soba
Vizuelno sam se potrudio da svetlim i pastelnim bojama povećam prostor što je moguće više (beli zidovi, beli pod, veći komadi nameštaja u pastelnim bojama). A, takođe sam koristio i manje komade nameštaja (stolice, fotelje) kako bi i na taj način vizuelno povećao prostor .
Stan 2
- Postojece stanje Stan 2
- Novoprojektovano stanje Stan 2
U stanu od 47 kvadrata koji ima kupatilo, hodnik, kuhinju, dnevni boravak, sobu i terasu živi četvoročlana porodica sa bakom koja se otežano kreće.
- Zatečeno stanje Stan 2
- Zatečeno stanje Stan 2
Pregradom velike sobe dobili smo zasebne sobe – za baku i za dete. Delimičnim rušenjem pregradnog zida između dnevnog boravka i kuhinje dobili smo prostraniji “dnevni” deo stana sa mnogo više svetla koje daje veliki prozor u kuhinji. Projekat je podrazumevao I rušenje ostave čime smo dobili veću, prostraniju kuhinju. Ono što je najbitnije postigli smo kružnu vezu u stanu i time ostvarili vizuelno prostranije i funkcionalnije prostorije, a svakako i olakšano kretanje za najstarijeg člana porodice i brže komunikacije unutar stana.
- Zatečeno stanje Stan 2
- Zatečeno stanje Stan 2
U kupatilu smo se odlučili za ugradnju tuš kabine umesto prethodne kade jer smo tako dobili dodatni proctor i olakšano funkcionisanje za sve ukućane. Sve komunikacije u stanu su postavljene pravolinijski, što omogućava lakše kretanje i uštedu prostora. Takođe svetlim bojama na većim površinama, podovima i zidovima smo dobili dodatno vizuelno proširenje prostora .
- Stanje nakon intervencije Stan 2
- Stanje nakon intervencije Stan 2
- Stanje nakon intervencije Stan 2
Iako sa novim sezonama stižu i nova iznenađenje, zahtevi i problematika, rado se sa njima hvatamo u koštac. Jer, ipak je na kraju najvažnije ono iznenađenje koje mi priređujemo porodicama, a to je nova, funkcionalna i nadamo se bolja kuća ili stan za sve ukućane koji u njoj žive.























